Ir al contenido
  • INICIO
  • PROYECTOS
  • ESTUDIO
  • CONTACTO
  • INICIO
  • PROYECTOS
  • ESTUDIO
  • CONTACTO
FOTOS
PLANOS
MEMORIA
FOTOS
IMG 6119
« ‹ de 15 › »
PLANOS
EA01
« ‹ de 4 › »
MEMORIA

DATOS TECNICOS

PROYECTO Juzgado de menores

SITUACION Huelva

ARQUITECTOS Jesús Prieto Barroso, PXP arquitectos

PROYECTO 2022

OBRA 2023

SUPERFICIE 800m2

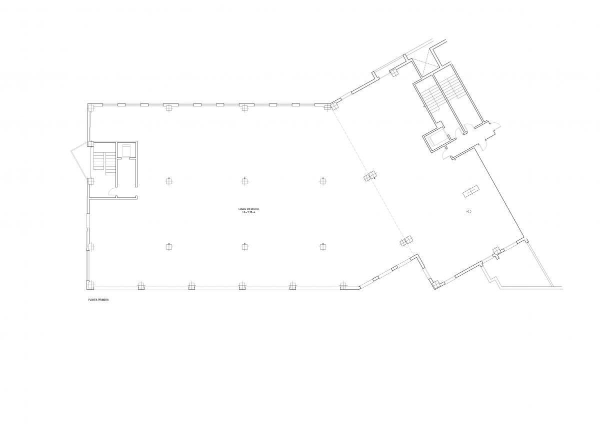
El local se encuentra en bruto al no haber tenido uso desde su construcción. La planta primera tiene tres fachadas, al norte da a la calle San Sebastián, al sur a la plaza de San Marcelino y al este con los jardines de la Av Pío XII. El conjunto dispone un portal de uso exclusivo para la sede por lo que se garantiza la independencia sobre otros usos, el acceso permite disponer de uno para personal y otro para público. En planta baja se dispone una parte del local para el aparcamiento del furgón policial y un espacio de retención del detenido, comunicado con el núcleo vertical que lleva a las dependencias judiciales.

La planta primera es un espacio diáfano de tres crujías de pilares de hormigón se encuentra en bruto, sin revestimientos, con los huecos de fachadas definidos según el diseño de fachada del conjunto edificatorio. El acceso a través del núcleo vertical de uso exclusivo situado en la fachada Norte, pero también tiene comunicación vertical con el núcleo de escaleras de la torre residencial en la medianera Sur.

Este espacio cumple con el programa establecido para el juzgado de menores, permitiendo una circulación sencilla de los distintos usos. Junto al acceso se proyecta el control y las dependencias del detenido, independizando este espacio del resto de estancias. En el vestíbulo de entrada se localiza la sala de vistas y las salas de espera para público con sus servicios.  De esta forma queda independizada la zona de circulación del personal de la zona de público y la zona de del detenido, sin que existan interferencias en las mismas.

A partir de aquí se desarrolla un pasillo central, que distribuye los espacios para los trabajadores del Juzgado, a un lado el despacho de juez, secretaría y tramitación con comunicación a la sala de vistas. A continuación, la fiscalía y sus dependencias anexas, despachos de fiscales, tramitación, sala técnica y entrevistas. Al fondo se ubican otras dependencias para la funcionalidad del juzgado: archivo, informática, servicios de personal.

Usamos cookies para asegurar que te damos la mejor experiencia en nuestra web. Si continúas usando este sitio, asumiremos que estás de acuerdo con ello.